Складской комплекс, Минск, пер.Промышленный 12
- Адрес:
- Минск, пер. Промышленный 12
- Открытие:
- 01.06.2018
- Площадь:
- 32 000 м²
От 1
Открытие 1 июня 2018
32 000 м²
32 000 м²
Объект расположен в 2 минутах от МКАД со стороны внешнего кольца — Шабаны, пер. Промышленный 12.
Рядом расположен гипермаркет строительных материалов «ОМА».
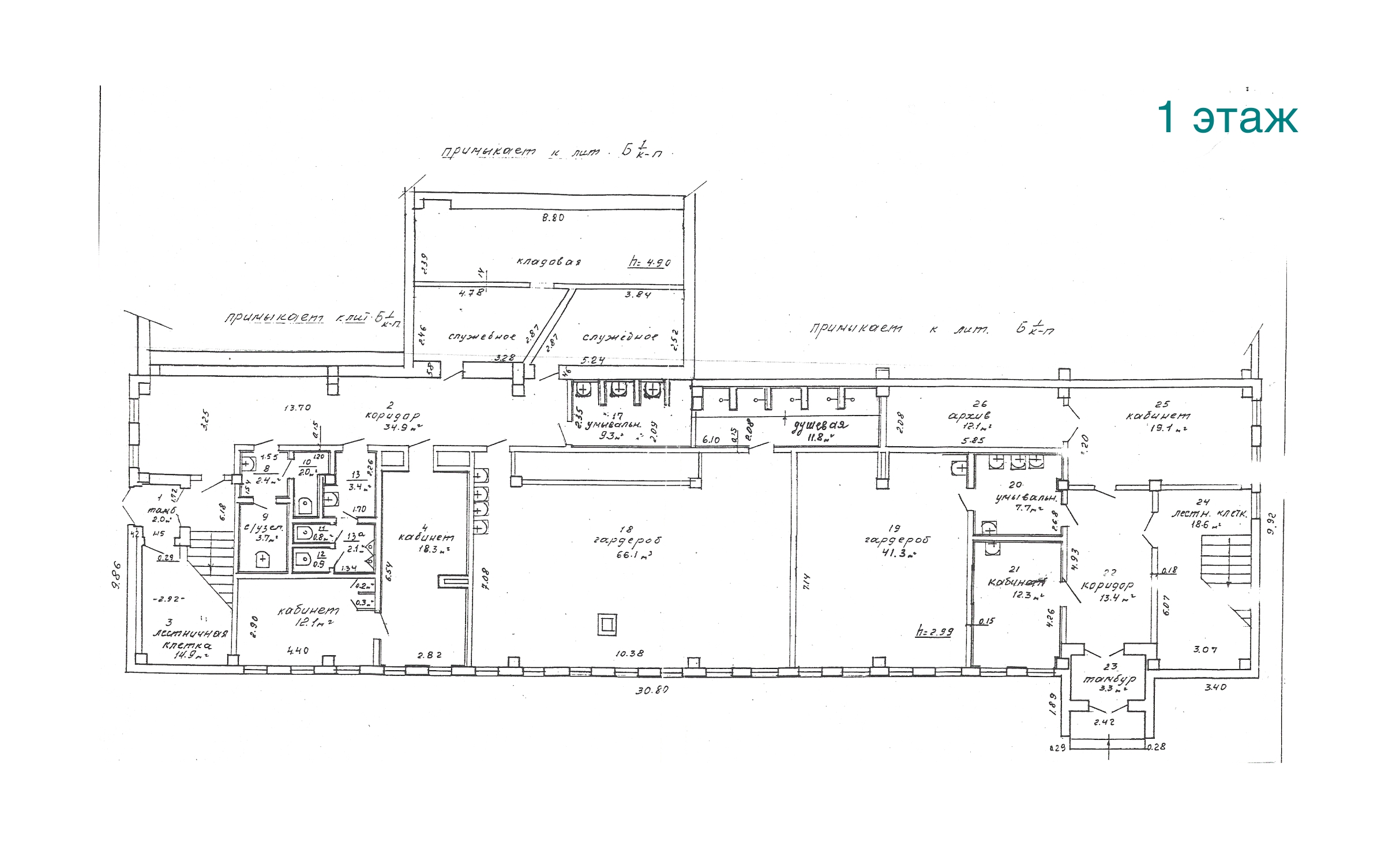
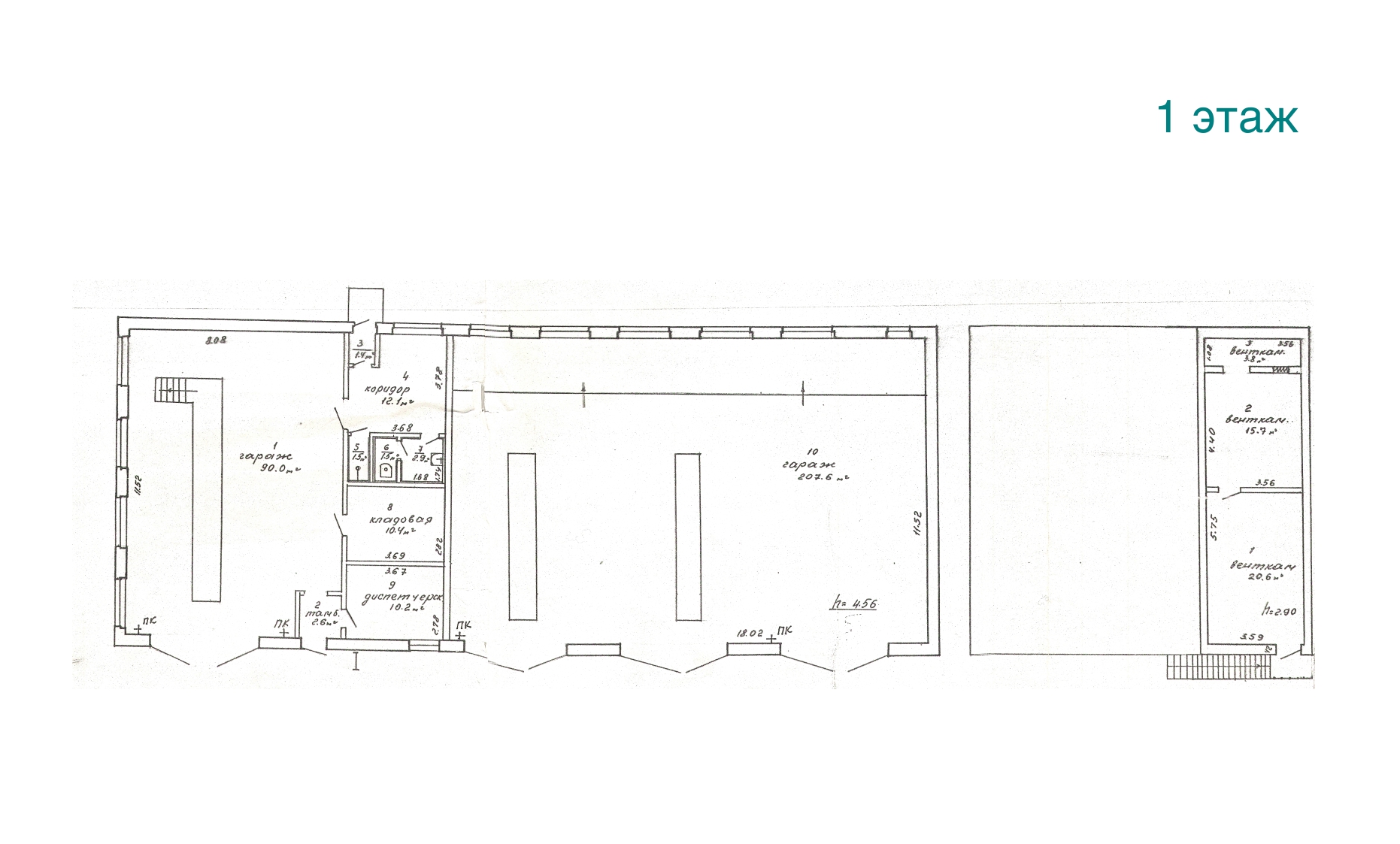
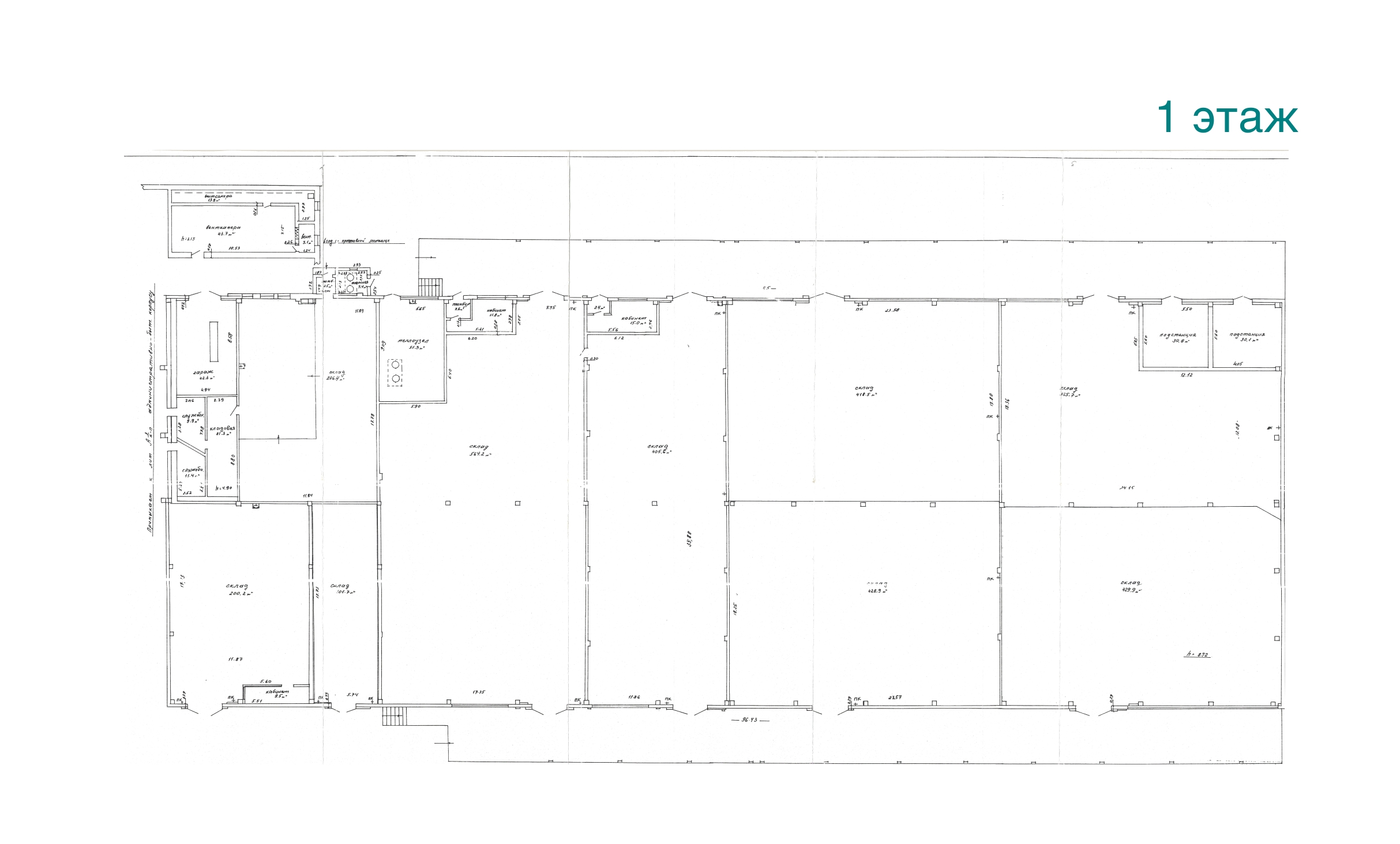
Складской комплекс включает в себя:
- Открытые площадки для хранения, площади от 100 м.кв до 10 000 м.кв.
- Холодные склады, максимальная площадь 5 000 м.кв.
- Теплые склады.
- Склады с краном-балкой.
- Площадки под СТО (с гаражной ямой).
- Склады стеллажного хранения.
- Склады с рампой.
- Офисы от 100 м.кв. до 1 100 м.кв. с мебелью, оборудованными комнатами приема пищи, переговорными, кондиционерами. Есть возможность аренды изолированного этажа или здания целиком.
Есть возможность аренды под склад-магазин.
Охраняемая и огороженная территория, удобные подъездные пути, парковка, остановки общественного транспорта, полное юридическое и эксплуатационное сопровождение.
Полное описание объекта смотрите в Презентации.
Свяжитесь с нами:
Почта: arenda@ascom.by
ООО «АСКОМ СИТИ» (Д.У.), УНП 102391623
